符号体系解析——从型号到性能的“技术密码”
型号示例:CF8VBUUR
CF…B:标准凸轮从动轴承(IKO品牌);
8:内径代号(即螺杆直径为8mm);
VUUR:后缀(V表示满装滚针,UU表示密封圈,R表示表面圆弧型);
工艺标——CAD图纸中的“质量核心”
凸轮轴承随动器与滚针轴承的工艺标注直接决定使用寿命与可靠性。
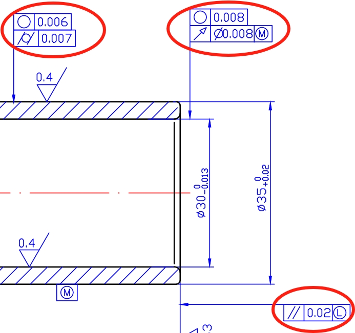
尺寸公差:控制零件的“大小”
指零件尺寸允许的变动量,用于控制零件实际尺寸与设计尺寸的偏差。
例如,图中外圈的直径标注为φ12 0^-0.008,表示实际直径允许在11.992mm至12mm之间波动。
形位公差:控制零件的“形态与位置”
包含形状公差(如圆度、直线度)和位置公差(如平行度、同轴度),用于控制零件几何要素的实际形状和位置相对于理想状态的偏差。例如,圆柱度公差限制轴的实际圆柱面与理想圆柱面的偏离程度。
如图所示:
圆度:O0.008,表示该横截面上实际轮廓与理想圆的偏离程度为半径差为0.008mm的两同心圆。即确保零件截面形状接近理想圆。
圆柱度:/O/0.007表示整个圆柱面的综合形状误差为公差带是半径差为0.007mm的两同轴圆柱面。
平行度://0.02表示公差带是间距0.02mm的两平行平面(即该图中外圈的内外面)之间的区域。
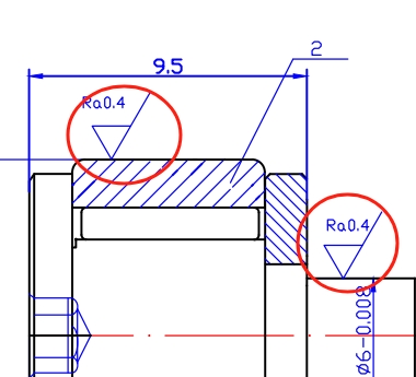
表面粗糙度:控制摩擦与磨损
表面粗糙度表现为加工表面在极小范围内(波距通常小于1mm)的峰谷高低和疏密分布,属于微观尺度的不规则性。例如,车削或磨削后的零件表面在显微镜下可见微米级的凹凸纹理。表面粗糙度直接影响零件的功能与寿命。
上图中,外圈及螺杆的表面标注的Ra0.4表示表面轮廓的平均偏差为0.4,属于精密加工范围,通常通过精密磨削实现,有效降低滚动摩擦。
材料与热处理
热处理是一种固态相变过程,通过控制材料的温度变化(加热至临界点以上或以下→保温→冷却),改变其晶粒结构、相组成或表面化学成分,最终提升材料的硬度、强度、耐磨性、韧性等性能。
不锈钢材质:标注“SUS304”或“SUS440C”,并注明“固溶处理”或“钝化防锈”;
倒角与圆角
去除毛刺与安全性提升,倒角通过切削棱边形成斜面,可有效去除机械加工产生的锐边毛刺,避免划伤操作者或损伤配合表面。通过消除直角棱边,分散局部应力,延长疲劳寿命。
圆角是机械设计中用于优化零件性能、提升安全性与美观性的重要标注。

上图中,
倒角1.5*45°表示在零件边缘形成的斜面过渡,其轴向长度为1.5mm,斜面角度为45°,
圆角R0.6表示在零件边缘形成的圆弧过渡,其半径为0.6mm。
【总结】
图纸是技术与应用的纽带,精准的符号解读与工艺标注,是确保轴承性能与寿命的关键。掌握图纸语言,让每一颗轴承都精准匹配您的设备需求!马一轴承提供来图来样定制服务。如需技术咨询,请联系我们的工程团队。
产品咨询丨18115079001